Mostni kran od 5 tona
Mostna dizalica sa dvostrukim nosačem ima dizajn konstrukcije sa dvostrukim nosačem, što povećava ukupnu stabilnost i nosivost. Dizajn grede ima oblik saćaste grede, koja ima karakteristike male težine i velikog opterećenja. Grede dizalice su povezane pomoću jedinstvene metode spajanja čeličnih klinova. Ova metoda nije samo jaka i pouzdana, već može uvelike skratiti vrijeme montaže i demontaže, čineći je jednostavnim za postavljanje i brzu upotrebu. Dvonosna mostna dizalica od 5-tona ima kapacitet dizanja do 5 tona i pogodna je za raspone od 7,5 do 35 metara. Takvi parametri ga čine pogodnim za širok spektar upotrebe u srednjim industrijskim aplikacijama.
![]()

Garancija: 1 godina
Težina (KG): 10000 kg
Značajka: Mostni kran
Stanje:Novo
Radna temperatura:-20-40 stepen
Slike i komponente
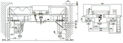
Most: Most je glavna nosiva konstrukcija dvonosne mosne dizalice. Sastoji se od dvije paralelne grede i više potpornih šipki za formiranje stabilne rešetkaste strukture. Ovaj dizajn može izdržati ogromna opterećenja pri podizanju, istovremeno osiguravajući mehaničku stabilnost i sigurnost.

Mehanizam za upravljanje kranom: Mehanizam za upravljanje kranom uključuje komponente kao što su motori, reduktori, set točkova, itd. Pokreće kran da se kreće po horizontalnoj stazi. Uređaj ima dovoljnu snagu i preciznu kontrolu brzine kako bi se osiguralo da se dizalica može nesmetano i precizno kretati u zadanu poziciju prilikom obavljanja zadataka.

Kolica: Kolica su dio koji se pomiče bočno na mostu. Sadrži mehanizam za podizanje i mehanizam za bočno kretanje. Mehanizam za podizanje sastoji se od električne dizalice i odgovoran je za vertikalno podizanje i spuštanje robe. Mehanizam za bočno kretanje kontrolira horizontalno kretanje kolica duž mosta. Njih dvoje rade zajedno kako bi postigli precizno pozicioniranje i rukovanje robom u trodimenzionalnom prostoru.

Električna oprema: Električna oprema je važan dio dizalice, uključujući upravljačke ormare, zaštitne uređaje, krajnje prekidače itd. Ovi uređaji osiguravaju udobnost i sigurnost rada dizalice. U kontrolnom ormaru su raspoređene različite električne komponente i upravljački sistemi koji su odgovorni za pokretanje, zaustavljanje, kontrolu brzine i otkrivanje kvara dizalice.

skica:


Glavni tehnički


Prednosti

Optimizacija konstrukcijskog dizajna: Mostna dizalica sa dvostrukim nosačem ima dizajn saćaste grede. Ovaj dizajn čini dizalicu malom težinom, ali velikim opterećenjem, te ima jaku otpornost na vjetar. Ova struktura ne samo da pruža veće performanse, već i osigurava stabilnost i izdržljivost dizalice.
Visoka operativna efikasnost: Mostne dizalice sa dvostrukim nosačem obično rade u vazduhu, što je intuitivnije i fleksibilnije od operacija na zemlji. U zasebnoj kontrolnoj sobi, operater može bolje promatrati okolno okruženje i status tereta, čime precizno kontrolira kretanje dizalice.
Jaka sigurnost: Da bi se povećala sigurnost tokom upotrebe, mostna dizalica sa dvostrukim nosačem opremljena je graničnikom preopterećenja, ekranom sa velikim ekranom i raznim zaštitnim uređajima. Ovi uređaji mogu brzo reagovati kada se pojave abnormalni uslovi, kao što je preopterećenje ili prekoračenje opsega putovanja, i automatski prekinuti napajanje ili oglasiti alarm, značajno poboljšavajući sigurnost u radu.
Prilagodljivo širokom spektru okruženja: Dizajn mosne dizalice sa dvostrukim nosačem uzima u obzir različita radna okruženja i može stabilno raditi pod različitim unutrašnjim i vanjskim temperaturama i uvjetima napajanja. Ova široka prilagodljivost omogućava mu da igra važnu ulogu u različitim industrijskim aplikacijama, kao što su industrijska i rudarska preduzeća, čelična i hemijska industrija, željeznički transport, itd.
primjena:
industrijska proizvodnja:
Mostne dizalice sa dvostrukim nosačima odgovorne su za podizanje i transport velikih radnih komada u industrijskim proizvodnim radionicama. Ovi radni komadi mogu uključivati mehaničke komponente, poluproizvode na proizvodnoj liniji, itd. Dizalica može precizno pomjeriti ove teške predmete unutar radionice po potrebi. Ovo ne samo da poboljšava efikasnost proizvodnje, već i smanjuje radni intenzitet radnika.
2.Lučka logistika:
Primjena dvonosnih mosnih dizalica u lukama je uglavnom za utovar i istovar kontejnera i rasutih tereta. Postavljanjem dvonosne mosne dizalice iznad keja, roba se može brzo i efikasno prebaciti sa broda u dvorište ili obrnuto, što je ključno za ubrzanje protoka robe.
3. Usluge skladištenja:
Mostne dizalice sa dvostrukim nosačem koriste se u logističkim distributivnim centrima za brzi transport raznih paketa i materijala. Od prijema, sortiranja do otpreme, cijeli proces se može automatizirati i poluautomatizirati putem dizalica, značajno poboljšavajući logističku efikasnost.
4. Izgradnja zgrada:
Mostna dizalica sa dvostrukim nosačima koristi se na gradilištima za transport pijeska, šljunka, cementa i drugih građevinskih materijala. Ovo može smanjiti radno opterećenje ručnog rukovanja, smanjiti sigurnosne rizike i poboljšati radnu efikasnost.
5. Posebno okruženje:
Mostna dizalica sa dvostrukim nosačima U hladnjači, specijalne dizalice tipa izolacije mogu raditi u okruženjima niskih temperatura i koriste se za transport i skladištenje smrznutih proizvoda kako bi se osigurao kontinuitet i efikasnost logistike hladnog lanca.
Global Market

Postupak proizvodnje dizalica

Pogled na radionicu
Kompanija je instalirala inteligentnu platformu za upravljanje opremom i instalirala 310 kompleta (setova) robota za rukovanje i zavarivanje. Nakon završetka plana, biće više od 500 kompleta (kompleta), a stopa umrežavanja opreme dostići će 95%. Puštene su u upotrebu 32 linije zavarivanja, planirana je ugradnja 50, a dostignut je stepen automatizacije cijele linije proizvoda.





Popularni tagovi: Mostni kran od 5 tona, Kina proizvođači, dobavljači, fabrika mosnih kranova od 5 tona
Sljedeći
Mostni kran od 40 tonaMoglo bi vam se i svidjeti
Pošaljite upit






















